Un projet réalisé par :Véronique Jannin
Architecte à Baule
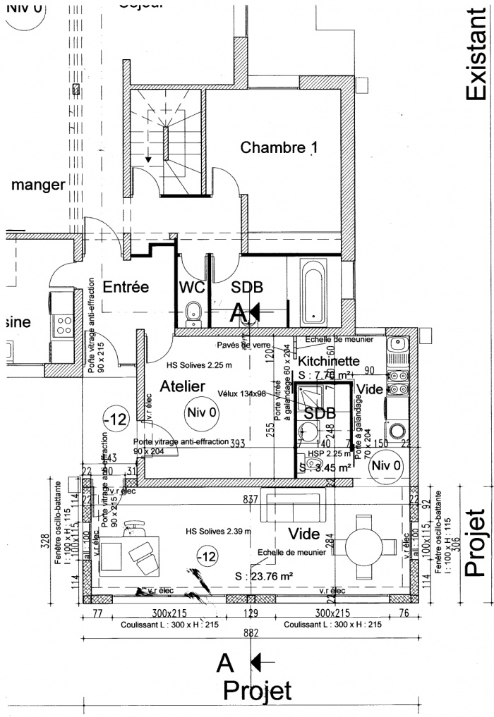
L'axe surlequel repose le projet est :
- Proposer une architecture ouverte sur le jardin et autonome par rapport à l'existant pour créer un studio.
L'axe surlequel repose le projet est :
- Proposer une architecture ouverte sur le jardin et autonome par rapport à l'existant pour créer un studio.
-
-
Existant
-
Existant
-
Plan extension
Après ( extension )